Nhà phố tối ưu không gian vui chơi cho trẻ mùa dịch Covid
Nhà phố tối ưu không gian vui chơi cho trẻ mùa dịch Covid
Nhà phố Sài Gòn được thiết kế, thi công khi đại dịch Covid-19 đã bùng phát. Trường học và không gian giải trí buộc phải đóng cửa nhằm thực thi cách ly xã hội. Nhà ở càng trở nên quan trọng hơn. Với công trình này, kiến trúc sư ưu tiên không gian cho trẻ nhỏ và các khu vực thư giãn, nghỉ ngơi.
Nhà phố tọa lạc tại quận 7, TP.HCM là tổ ấm của một gia đình trẻ có hai con trai. Công trình được xây dựng với tổng diện tích 117m2.
Với tài chính hạn chế, kiến trúc sư quyết định chọn phương án thiết kế không gian sống, làm việc, nghỉ ngơi hợp lý, giúp giảm căng thẳng, mệt mỏi khi bị hạn chế rời khỏi nhà.
Phòng khách được thu hẹp, nhường diện tích mặt sàn cho không gian bếp nấu, phòng ăn và khu vui chơi của trẻ. Thiết kế mở liên thông tạo cảm giác rộng thoáng hơn cho ngôi nhà.
Kiến trúc sư tận dụng tối đa mọi khoảng trống, ngóc ngách trong nhà để bố trí không gian vui chơi cho trẻ, giúp trẻ giải phóng năng lượng, phát triển thể chất.
Với thiết kế mở phóng khoáng, nhà phố đẹp tận dụng được tối đa ánh sáng tự nhiên, tốt cho sức khỏe và giúp gia chủ giảm chi phí tiêu thụ điện.
Góc thưởng trà, đọc sách và thư giãn ngập tràn ánh sáng tự nhiên, được bố trí ngay ở khu vực giếng trời nhà phố Sài Gòn. Xem thêm https://maps.google.com/url?q=https://nhaxinhluxury.com.vn/
Góc vui chơi lý tưởng, gần gũi với thiên nhiên và đặc biệt phù hợp trong bối cảnh đại dịch Covid-19 vẫn diễn biến phức tạp.
Cây xanh trồng xen kẽ ở những nơi có đủ ánh sáng tự nhiên, không khí trong lành.
Khu vực giếng trời nhà phố nhìn từ tầng trên xuống.
Phòng ngủ của bố mẹ và phòng trẻ em có cửa thông nhau và kết nối với ban công thoáng sáng, tạo không gian rộng rãi cho trẻ thoải mái chạy nhảy, vui đùa.
Phòng ngủ master được thiết kế với cửa kính lớn mở ra ban công và thiên nhiên xanh mát bên ngoài, tạo cảm giác thông thoáng và mở rộng tầm nhìn.
Góc thư giãn ngập tràn nắng gió trên ban công - không gian lý tưởng dành cho nhà phố.
Khung cảnh ngôi nhà về đêm lung linh tỏa sáng.
Phối cảnh mặt cắt đứng ngôi nhà
Phối cảnh mặt cắt ngang ngôi nhà
Mặt bằng bố trí nội thất tầng trệt
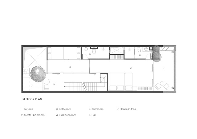
Mặt bằng tầng 1 nhà phố
Mặt bằng tầng 2 nhà phố
Mặt bằng mái nhà phố
Xem bài về mẫu thiết kế biệt thự đẹp sài gòn




















Post a Comment