Nhà hình bán nguyệt trên mảnh đất thóp hậu
Nhà hình bán nguyệt trên mảnh đất thóp hậu
ĐÀ NẴNG - Thiết kế với những đường cong khắc phục được nhược điểm "đầu voi đuôi chuột" mặt bằng đồng thời tạo nên tổ ấm đầy nắng gió cho gia chủ.
Ngôi nhà mang tên Phong House ở Đặng Thái Thân (Đà Nẵng) được xây dựng trên mảnh đất có mặt tiền lớn nhưng hẹp dần phía sau, rộng hơn 110 m2. Xem thêm bài về 60 mẫu sân vườn đẹp https://thietkenhaxinhsg.com/man-nhan-60-mau-san-vuon-dep-moi-nhat-2022/
Để tạo nên không gian sống phù hợp cho gia đình ba thế hệ trên mảnh đất khó, các kiến trúc sư đã đưa ra thiết kế với những đường cong từ ngoài vào trong.
Mặt tiền nhà có hình bán nguyệt, ốp gạch bê tông xám. Giải pháp này tạo điểm nhấn cho công trình và khiến người nhìn bớt chú ý đến cảm giác thóp hậu của địa thế.
Những đường cong được nhắc lại trong nhà.
Đường cong của không gian nội thất đồng bộ với mặt tiền nhà đồng thời thêm sự thú vị cho một công trình có trẻ nhỏ.
Bên cạnh đó, sân vườn là một phần quan trọng của căn nhà để đáp ứng tiêu chí tươi sáng, thông thoáng, tận dụng ánh sáng thiên nhiên từ trước ra sau cũng như thúc đẩy sự giao tiếp giữa các thành viên gia đình.
Khoảng sân trước nhà cũng là chỗ chơi của em bé cho vợ chồng gia chủ thêm gắn kết với con.
Bên hông nhà, khoảng sân kết hợp giếng trời tạo khoảng thoáng cho căn nhà ba mặt giáp nhà hàng xóm.
Nhờ khoảng sân - giếng trời hông nhà, khu vực làm việc của hai vợ chồng trở thành nơi gia chủ tâm đắc nhất. Xem thêm bài về thiết kế không gian nhà đẹp https://khonggiandep.pro/
Mảng kính lớn ôm trọn giếng trời giúp phòng làm việc tận dụng tối đa ánh sáng và gió tự nhiên. Từ phòng làm việc, người ở cũng dễ dàng kết nối với không gian bên dưới.
Vì không gian đã sử dụng nhiều đường cong, nội thất nhà theo tiêu chí đơn giản với tông trắng và màu gỗ chủ đạo.
Kết hợp với ánh sáng, gió tự nhiên và cây xanh, căn nhà đơn giản nhưng đủ tiện nghi, tươi mới.
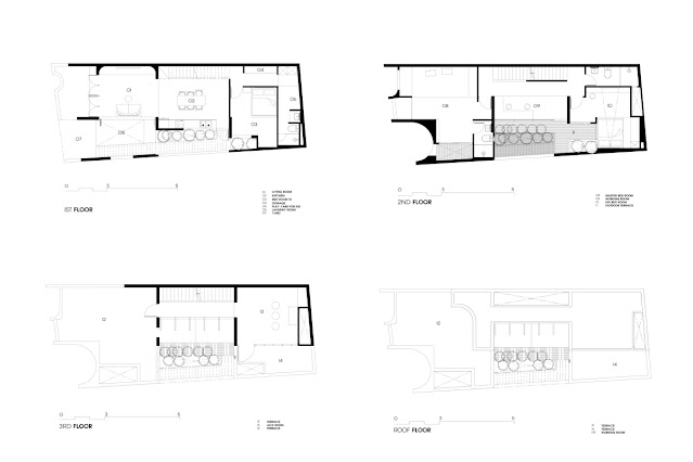
Bản vẽ bố trí mặt bằng của công trình. Công trình hoàn thiện năm 2021 với chi phí 2,6 tỷ đồng.
Theo vnexpress













Post a Comment