Sắc xám - đen - nâu nhạt kết hợp hoàn hảo trong căn hộ 60m2
Sắc xám - đen - nâu nhạt kết hợp hoàn hảo trong căn hộ 60m2
Căn hộ 60m2 được thiết kế và bài trí theo phong cách hiện đại, tối giản. Đây là xu hướng nội thất nổi bật, được ưa chuộng nhất thời gian gần đây. Nếu chuộng bảng màu trung tính thì căn chung cư này rất đáng để bạn tham khảo.
Một chiếc ghế sofa nhỏ vừa vặn với phòng khách căn hộ 60m2. Tác phẩm nghệ thuật trừu tượng lớn phù hợp với tỷ lệ của căn phòng.
Bàn cà phê tròn màu xám nhạt đặt gọn gàng trên thảm trải màu kem. Thảm được sử dụng để tạo ra lớp cách âm cho căn hộ nhỏ.
Ở phía đối diện của căn phòng, một kệ tivi nổi màu đen tương phản với bảng màu nhạt của sơn tường, vật liệu lát sàn góp phần tạo chiều sâu cho không gian.
Phần còn lại của khu vực sảnh nhỏ được dành riêng cho bàn ghế trang điểm, phân tách tương đối với không gian bên ngoài bởi kệ sách.
Trong gian bếp, tủ đựng rượu với thiết kế bóng bẩy tạo điểm nhấn hút mắt.
Đèn thả độc đáo với hình dáng vòng cung màu đen nổi bật trên vách tường thạch cao màu trắng có gân nổi.
Hệ tủ màu xám và vân gỗ tạo nên một không gian bếp hiện đại, thoáng đãng. Tường chắn ốp đá cẩm thạch đen bóng tạo cảm giác sang trọng, đồng thời dễ dàng vệ sinh làm sạch.
Trong phòng ngủ căn hộ 60m2, giường đệm màu xám hài hòa với sắc kem chủ đạo. Đèn thả mặt dây chuyền màu đen bổ sung nét thanh mảnh cho căn phòng.
Tủ quần áo cửa gương giúp căn phòng có cảm giác rộng thoáng hơn so với diện tích thực tế. Đèn LED lắp trong tủ bổ sung ánh sáng cho phòng ngủ.
Các loại bóng đèn được lắp đặt khéo léo trong căn hộ nhỏ, đảm bảo đủ ánh sáng cho tất cả các khu vực chức năng.
Kiến trúc sư tận dụng không gian hành lang căn hộ để bố trí tủ quần áo tùy chỉnh cao kịch trần, vừa vặn với diện tích.
Góc treo áo, ngồi nghỉ ở khu vực hành lang căn hộ 60m2. Chất liệu gỗ sẫm tạo chiều sâu cho không gian, mang lại cảm giác thân thiện.
Khu vực bồn rửa mặt nổi bật với gương tròn gắn đèn LED ánh sáng trắng, tương phản với tấm ốp gỗ sẫm màu.
Chất liệu gỗ tiếp tục hiện diện ở khu vực đặt bồn tắm, tạo cảm giác ấm áp.
Một phòng tắm khác với thiết kế nội thất tương tự, chỉ thay đổi cách phối màu.
Vòi sen màu đen tuyền tương phản với gạch ốp lát màu xám, tạo hiệu ứng thẩm mỹ thú vị và cực bắt mắt.
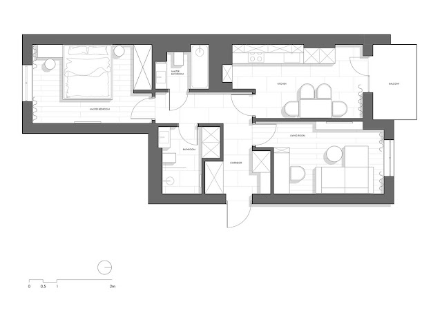
Mặt bằng bố trí nội thất căn hộ 60m2
Đọc thêm bài về mẫu thiết kế biệt thự hiện đại
Theo thanhnienviet


















Post a Comment